④: CADデータ / 3D-PDF ダウンロード
橋梁用 TSステンレス排水装置 図面ダウンロード
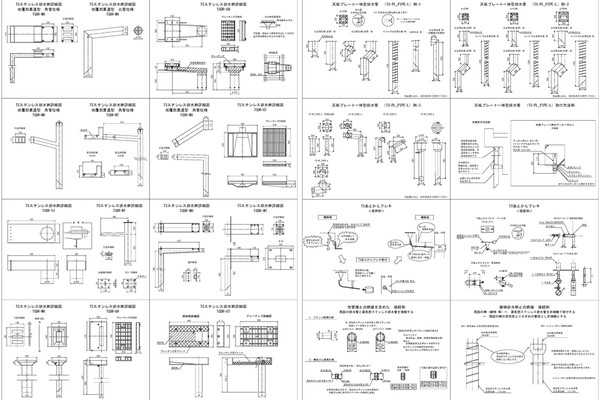
ステンレス排水装置 図面ダウンロード
「TSステンレス排水桝」「高気密ステンレス排水管」「天板プレート一体型排水管」等のTSステンレス排水装置のCADデータ、3D PDFのダウンロードページになります。
掲載は一例になります。その他CAD図、作図のご相談はお気軽に連絡相談下さい。
・CADファイルはAUTO CAD(.dwg)です。zipファイルとなっていますのでダウンロード後、解凍しご利用下さい。
・3D-PDFは対応のビュワーが必要となります。パソコンの場合は「Acrobatリーダー」、スマートフォンの場合は「3D PDF Reader」でご覧頂けます。
・環境により見え方が異なる、元々の数値等が異なる場合も あります。
各図面 ダウンロードページへ
3D-PDF の開き方
(スマートフォン等のモバイルの場合、PCの場合)
下記3パターンがご覧頂けます
・3D-PDF → 3次元のPDFです ※無償の対応アプリ、ソフトが必要です
・2D CAD(PDF) → 通常図面のPDF
・2D CAD(DWG) → DWG(AUTO CAD)図面
※3-D PDFは形状確認等の参考としてご利用下さい
各ファイル、ご使用端末毎での対応アプリ/ソフト
![]() | ![]() | ![]() | |
スマートフォン | 最初にアプリ 「3D-PDF Reader」 をインストール ↓ ※カタログのQRコードを ご利用の場合 お使いのQRコードリーダーを 使用し QRコードを読み込む ↓ ブラウザからファイルを ダウンロード、 アプリ 「3D-PDF Reader」 を選択 ……………………………… ※Acrobat Reader等では 正しく表示されません ……………………………… | ※カタログのQRコードを ご利用の場合 お使いのQRコードリーダーを 使用し QRコードを読み込む ↓ ダウンロードし 「Acrobat Reader」 等でご覧下さい | zipファイルです。 ダウンロードしzipファイルを 解凍し対応アプリでご覧下さい |
![]() パソコン | ダウンロードし 「Acrobat Reader」 でご覧下さい | ダウンロードし 「Acrobat Reader」等 でご覧下さい | zipファイルです。 ダウンロードしzipファイルを解凍し対応ソフトで ご利用下さい |
1.事前に「3D-PDF Reader」をインストールしておく 2.本サイトの3D-PDFファイルをクリックする ※この先、機種やブラウザの種類により異なります。代表的な例を下記に記載します
![]() | ![]() |
※正しくファイルが開いているかは下記でご確認下さい















