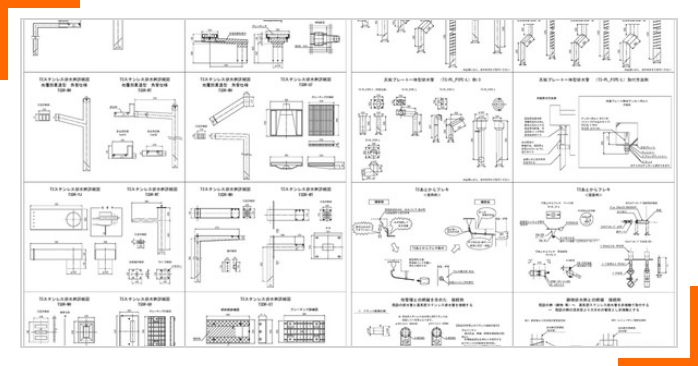
橋梁用 TSステンレス排水装置
橋梁用のTSステンレス排水装置の各ページへのリンク一覧です。
下記より各ページをご覧ください。
ご希望のご案内の有無、掲載ページが不明等ございましたらお気軽にお電話(0587-53-1545)ください。
①「TSステンレス排水桝」
補修 / 新設
当社では作図や設計協力などを個別サポートしています。
お気軽にご相談ください。
② 補修 排水管
「天板プレート一体型排水装置」他
当社では作図や設計協力などを個別サポートしています。
お気軽にご相談ください。
③「TSステンレス排水装置」
全般 特徴 / ご提案例
当社では作図や設計協力などを個別サポートしています。
お気軽にご相談ください。
④「TSステンレス排水装置 」
CAD / 3D-CAD ダウンロード
当社では作図や設計協力などを個別サポートしています。
お気軽にご相談ください。
(サブサイト)製品 / 設置写真 検索サイト
製品 設置写真をご覧いただけるサブサイトへ

様々な組み合わせで検索したり、ランダムでご覧いただくこともできます






















